590  Carlos Circle            $499,900
        
    
            Here is an incredible opportunity to buy a BUILD-READY Fort Myers Beach lot just across from the beach, at the low-traffic NORTH END OF THE
ISLAND near Times Square. You can bypass over a year of variance work, engineering, and plan design and submit the plans for a permit as soon
as you close! This lot is the best value available in this desirable location on the Northern end of Estero Island. You will love the quick access to the
beach, just across Estero Blvd! It is just a 5 minute walk to restaurants, bars and shopping, and you have easy access to get on and off the island
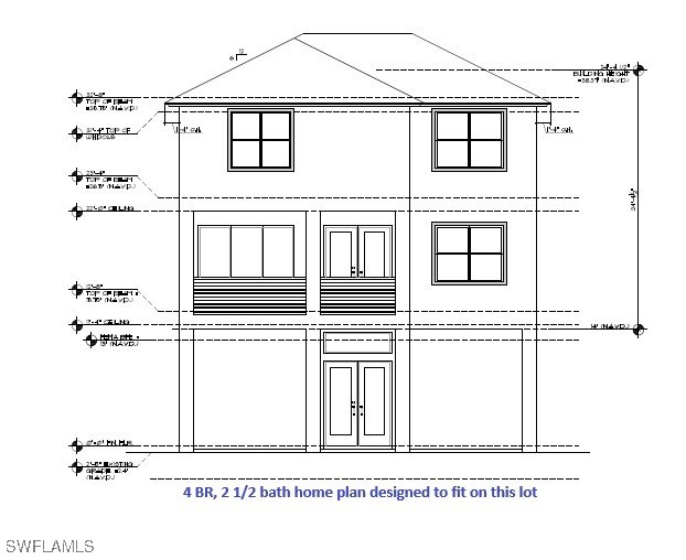
without the traffic. Best yet: THE HARD WORK IS DONE, as the lot has received a variance to allow for a 9 ft street setback (down from 25 ft) and a
15 ft rear setback (down from 20 ft). A home plan for a 1908 sq ft, 4 bedroom, 3 bath home (possibly with a pool partially under the home) has
been designed to fit within the adjusted setbacks. Save time and money and you can get right to the construction of your new home or investment
property! (The lot is in the weekly rental district; in case you hope to do a short-term investment here). Use your own builder, or work with our
builder that has consulted on the variance and floor plans and get started even quicker!
                                
                                    
                                        
                                            
                                        
                                        
                                            
                                        
                                    
                                
                                
                                    
                                        
                                            
                                        
                                        
                                            
                                        
                                    
                                        
                    General Amenities
Community Amenities
- Lot Acres
 - 0.06
 
590  Carlos Circle
Fort Myers Beach, Florida 33931
United States
Fort Myers Beach, Florida 33931
United States
Subdivision: ISLAND SHORES
County: Lee
Sale Type: For Sale
Ref #: 225044723
Category: Vacant Land
Listed by Premiere Plus Realty Company
            - Lot Acres
 - 0.06
 
- Lot Acres
 - 0.06
 
590  Carlos Circle
Fort Myers Beach, Florida 33931
United States
Fort Myers Beach, Florida 33931
United States
Subdivision: ISLAND SHORES
County: Lee
Sale Type: For Sale
Ref #: 225044723
Category: Vacant Land
Listed by Premiere Plus Realty Company
            